Kthehu prapa
89000€
€ për metër katror

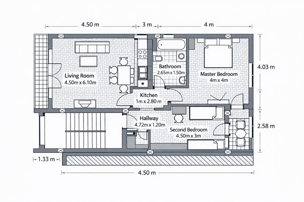
Banesë në shitje në Arbëri(Dragodan)

2
1
85m2
Prona
për shitje
3 javë në Wondmax.com
Modifikuar më 31 Mars 2026

Përshkrimi

🌟 Banesë komode, e vendosur në një prej lagjeve më të kërkuara në Prishtinë – Arbëria (Dragodan). Me sipërfaqe 85m²,me akses të lehtë në të gjitha shërbimet e nevojshme. Një mundësi e shkëlqyer, qoftë si investim, qoftë për jetesë familjare. Përfitoni Tani!

Dokumentacioni & Pronësia

Informata shtesë

Detajet e çmimit

Çmimi i pronës89000€
Metodë pagese

Detaje të tjera

Numri identifikues46723
Tipi i pronësBanesë
Sipërfaqja85m2
Numri i dhomave2
Numri i banjove1
Raporto listimin